Leave a Message

Thank you for your message. We will be in touch with you shortly.

See all photos
17915 Texas Wildflower Drive

17915 Texas Wildflower Drive

$649,000  |  17915 Texas Wildflower Drive, Cypress, TX 77433

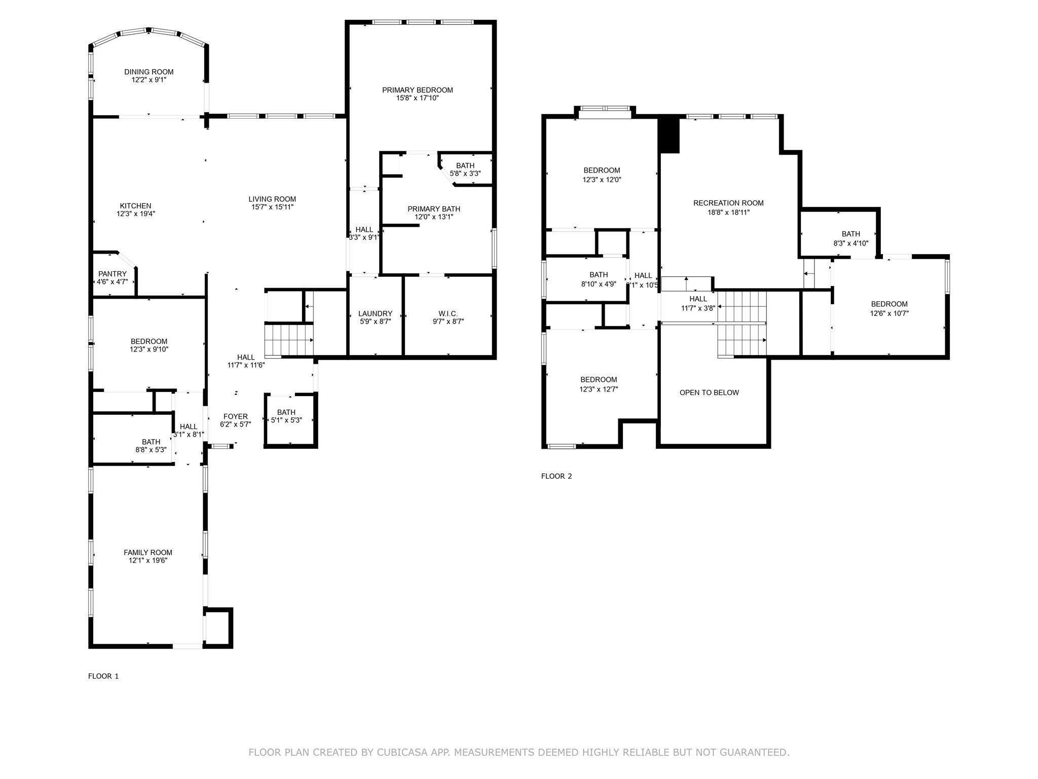
With over $107k in upgrades & extras included ($60k builder + $37k post + $10k NEW seller extras), this meticulously upgraded 5-bedroom, 4.5-bath Next Gen home (built in 2021) sits on a quiet, serene cul-de-sac in Towne Lake. This rare multigenerational gem features a private In-Law Suite with full kitchen, bedroom, bath, separate entrance & garage--ideal for family, guests, office, or rental income. The main home offers open-concept living with high ceilings and an upgraded kitchen featuring a gas cooktop, quartz island, and breakfast bar. Luxe first-floor primary suite includes bay windows, custom walk-in closet, and spa bath with dual sinks, walk-in shower & separate tub. Upstairs you'll find 3 bedrooms, 2 baths (including one en suite), plus a spacious game room. This modern "Connected Home by Lennar (smart home)" includes WiFi extenders and a whole-home HVAC dehumidifier. Towne Lake amenities feature a private lake, marina, pools, waterpark, and Boardwalk shopping & dining.

Request Info

PENDING

Status

5

Bedrooms

5

Bathrooms

3,171 Sq.Ft.

Living Area

3171

Acres Lot

2021

Year Built

Features & Amenities

Interior

Total Bedrooms:
5
Total Bathrooms:
5
Full Bathrooms:
4
Half Bathrooms:
1
Laundry Room:
Electric Dryer Hookup, Washer Hookup
Flooring:
Carpet, Tile
Appliances:
ENERGY STAR Qualified Appliances, Disposal, Dryer Included, Refrigerator Included, Washer Included, Convection Oven, Electric Oven, Oven, Microwave, Gas Cooktop, Dishwasher
Other Interior Features:
Crown Molding, Formal Entry/Foyer, Prewired for Alarm System, 2 Bedrooms Down, 2 Primary Bedrooms, En-Suite Bath, Primary Bed - 1st Floor, Walk-In Closet(s)

Area & Lot

Status:
Pending
Living Area:
3,171 Sq.Ft.
Total Area:
3,171 Sq.Ft.
Lot Size:
7,200 Sq.Ft.
MLS® ID:
60150272
Type
Residential
Year Built:
2021
Architecture Styles:
Traditional
Elementary School:
Rennell Elementary School
Middle School:
Anthony Middle School (Cypress-Fairbanks)
High School:
Cypress Ranch High School
School District:
13 - Cypress-Fairbanks

Exterior

Stories:
2
Garage Space:
3.0
Water Source:
Water District
Roof:
Composition
Lot Features:
Cul-De-Sac, Subdivided, 0 Up To 1/4 Acre
Parking:
Attached, Oversized, Garage Door Opener
Heat Type:
Natural Gas
Air Conditioning:
Ceiling Fan(s), Electric
Substructure:
Slab
Other Exterior Features:
Sprinkler System

Financial

Sales Price
$649,000
Real Estate Taxes
$14,885/yr
HOA Fees
$2,100/yr
View Virtual Tour

Property Video

Check out our tour of this property.

Download Property Information

List of Upgrades & Extras_rev3b (17915 Texas Wildflower) (1).pdf

Download files

Location